Manchmal ist es aus platztechnischen Gründen nicht möglich einen Aufzug oder Homelift herzustellen oder nur mit extrem hohem wirtschaftlichen Aufwand. Hier sind Treppenlifte eine verhältnismäßig kostengünstige Erleichterung im Leben von mobilitätseingeschränkter Menschen.
Treppenlifte haben ein schlankes Design und eine hochklappbare Plattform. Dadurch bleibt jede Treppe vollständig nutzbar. Die obere Schiene ist i.d.R. uneingeschränkt als Handlauf nutzbar.
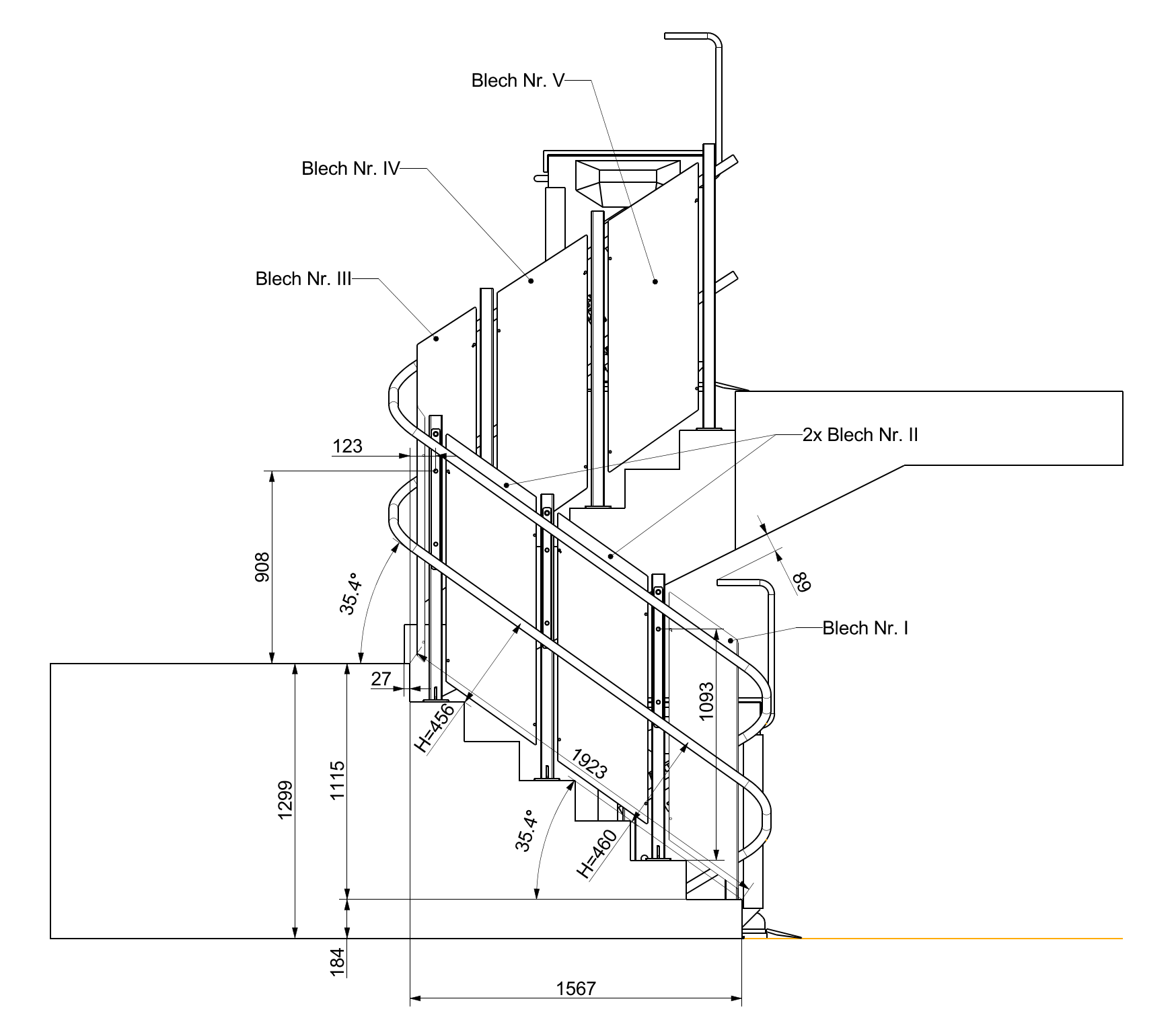
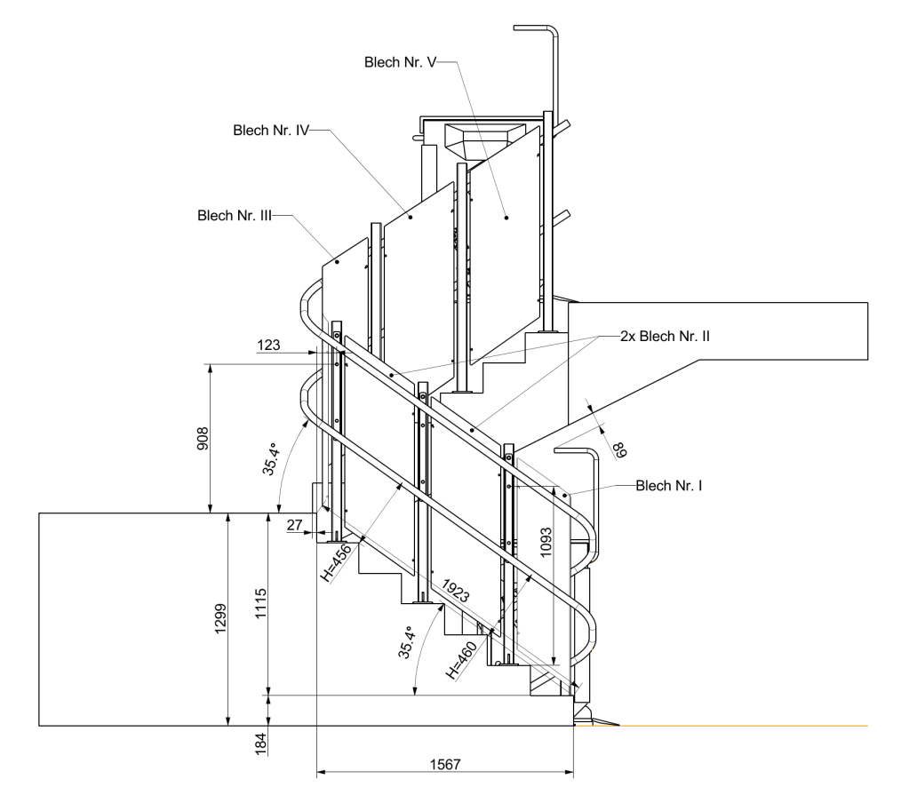
Treppenschrägaufzüge und Plattformaufzüge mit geneigter Fahrbahn nach EN81-40 sind zum Transport von Personen mit Behinderungen im Wohnungsbau prinzipiell einsetzbar. Wegen deren Gefährdungspotentiale und Besonderheiten im Betrieb ist ein Einsatz im öffentlich zugänglichen Bereich stark eingeschränkt und nicht zu empfehlen. Die Nutzbarkeit der Treppe als notwendiger Rettungsweg und ihre Verkehrssicherheit müssen in jedem Fall gewährleistet bleiben.





Du muss angemeldet sein, um einen Kommentar zu veröffentlichen.