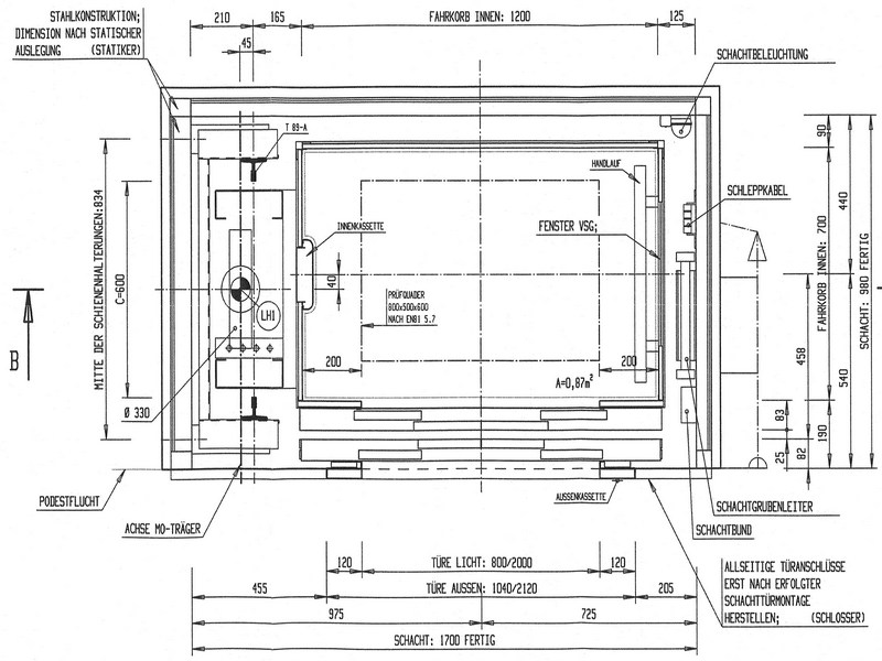
In bestehenden Häuser gibt es oft die Herausforderung auf engstem Platz einen Aufzug zu planen und einzubauen.
Ein Beispiel einer kompletten Betreuung, angefangen von der Planung über die Einreichung, Baustellenkoordination und Abnahme.
Zuerst sind die Baumeisterarbeiten erforderlich.
Es folgen die Schlosserarbeiten.
Es folgt die Verglasung des Turmes.
Die fertige Anlage – klein aber fein:














Du muss angemeldet sein, um einen Kommentar zu veröffentlichen.